
In dit project stond de herbestemming en uitbreiding van een bestaand grachtenpand aan de Prinsengracht centraal. Het doel was om kennis op te doen over interventies in bestaande bouw, waarbij we zowel de architectonische als de bouwtechnische integratie van een nieuwe bouwlaag onderzochten en uitwerkten.
De opdracht werd uitgevoerd als duo-onderzoek, waarbij ik verantwoordelijk was voor de analyse van een geselecteerd pand uit de plannenmap. Mijn focus lag op het in kaart brengen van de cultuurhistorische en architectonische waarde van het grachtenpand, evenals de bouwmethodiek, waaronder de gebruikte materialen, de gebouwschil, draagstructuur en overspanningen.
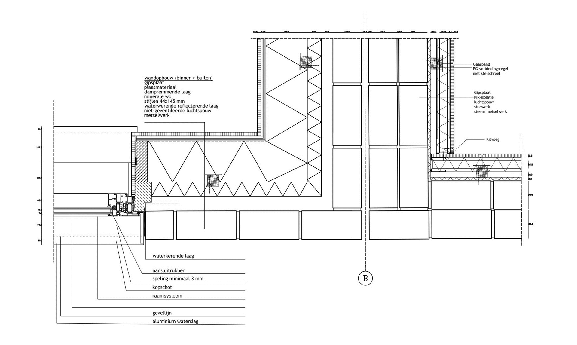
Daarnaast voerde ik onderzoek uit naar de functionele en bouwfysische prestatie-eisen, met als doel om inzicht te krijgen in de bouwtechnische aspecten op drie schaalniveaus: gebouw, gebouwdeel en detail. Specifiek onderzocht ik hoe een extra bouwlaag architectonisch én bouwkundig op een respectvolle en toekomstbestendige manier kon worden toegevoegd. Daarbij was het essentieel dat de nieuwe en bestaande bouwschil gezamenlijk voldoen aan de huidige energieprestatie-eisen (BENG).
Deze opdracht bood mij de kans om mijn analytisch vermogen te verdiepen en mijn technische kennis verder te ontwikkelen binnen een complex stedelijk en historisch kader. Het eindresultaat is een onderbouwd ontwerp dat op overtuigende wijze de balans vindt tussen erfgoed, ruimtelijke kwaliteit en technische haalbaarheid.



